
400-0571-185
一、概述
電氣防火限流式保護器是針對金屬性短路的一個保護,可有效克服傳統斷路器、空氣開關和監控設備存在的短路電流大、切斷短路電流時間長、短路時產生的電弧火花大,以及使用壽命短等弊端。
發生短路故障時,電氣防火限流式保護器能以微秒級速度快速限制短路電流以實現滅弧保護,在由短路產生的電流遠未達到短路電流前就完成限流,從而預防電氣線路短路過程中引起的連續拉弧打火等引燃可燃物造成的火災事故,保障使用場所人員和財產的安全。
三相電氣防火限流式保護器,針對三相回路進行短路保護。保護器能實時準確檢測用電回路的電流,并能以微秒級速度快速限制短路電流以實現滅弧保護,并集三相電壓、電流、頻率、剩余電流、溫度、電能統計等多種功能于一體。
二、基本功能
◆ 三相短路電流監測,微秒級極速限流保護
◆ 三相過負荷保護
◆ 過溫保護(設備內部超溫保護)
◆ 實時檢測三相用電回路的電壓、電流、頻率、剩余電流、溫度等(可選配電量統計等)
◆ 中文液晶顯示,顯示信息直觀豐富
◆ 控制功能(可遙控、也可現場手動控制)
◆ 保護功能(可遠程、也可現場手動控制)
◆ 遙信功能(現場開關量檢測)
◆ 傳感器故障聲、光報警
◆ 被監測參數越限聲、光報警
◆ 一鍵消音(新的報警自動重新啟動)
◆ 自檢功能(對裝置自身功能檢測)
◆ 4G/WIFI/RS485通訊,實現遠程監控
三、主要技術參數
1、額定工作電壓:380V AC
2、額定工作電流:(三種選型方案)63A、80A、100A
3、限流保護時間:<150us
4、過負荷保護時間:3-60秒可設定
5、過溫保護:70℃
6、警報聲響:≥70db
7、報警方式:聲光報警
8、中文液晶顯示、輕觸鍵盤式、LED燈光提醒
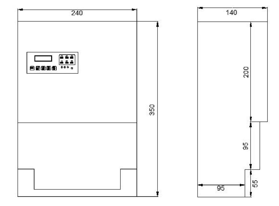
9、設備尺寸:350mm*240mm*140mm
10、通訊方式:4G/WIFI/RS485
11、使用環境條件
① 環境溫度:-20℃~+40℃
② 相對濕度:10%~90%
③ 海拔高度:不超過3000m
④ 使用場所:具防雨設施
13、重量:9500g
注:本保護器出廠主要參數已經設置為默認值如下:
電壓過壓值:242V
電壓欠壓值:187V
剩余電流報警值:30mA
報警保護:保護
四、使用及工作狀態說明
電氣防火限流式保護器正常運行時無須人工干預。但初次運行時應由專人負責對其參數進行設置,確保其工作在正常監測狀態。
電氣防火限流式保護器設計了友好的人機對話界面,保護器正常運行的各種參數都可以通過鍵盤進行修改設定,也可以進行手動保護輸出操作(僅限非保護狀態下)和復位本保護器,為確保保護器運行安全,設置有四位密碼,出廠初始為0009,建議用戶初次使用后進行修改(修改后請務必牢記)。
(一)主菜單
進入:確定(回車按鍵)進入主菜單-按翻頁按鍵選擇需要的操作
1、設備復位
選中本級目錄,進入:確定(回車按鍵)-輸入密碼-確定,對保護器進行復位操作
2、控制輸出
選中本級目錄,進入:確定(回車按鍵)-輸入密碼-確定,對保護器輸出繼電器進行控制輸出操作
3、參數設置
選中本級目錄,進入:確定(回車按鍵)-輸入密碼-確定進入下一級菜單,按翻頁按鍵選擇需要設定的項目,依次進入:確定(回車按鍵)進入相應的參數設置
4、限流輸出
選中本級目錄,進入:確定(回車按鍵)-輸入密碼-確定,對保護器進行限流保護輸出操作(僅限非短路限流保護狀態下)
1)、設備地址
設置設備的網絡通訊地址
2)、電壓過壓值
設置電壓高限報警值
3)、電壓欠壓值
設置電壓低限報警值
4)、電流報警值
設置電流報警值
5)、漏電報警值
設置漏電報警值
6)、溫度報警值
設置外接的溫度報警值
7)、電壓保護允許
設置電壓報警是否允許限流保護
8)、電流保護允許
設置電流報警是否允許限流保護
9)、漏電保護允許
設置漏電報警是否允許限流保護
10)、溫度保護允許
設置溫度報警是否允許限流保護
11)、溫度設置
配置溫度通道數量(默認內置1路溫度)
12)、總線速率
設置設備RS485總線通訊速率
13)、故障報警允許
設定設備在檢測到有傳感器故障時是否報警
14)、警音允許
設定設備在報警狀態時是否允許聲音輸出
15)、對比度
設定設備液晶顯示屏的對比度
16)、設備密碼
設定設備密碼
17)、報警延時
設定報警延時時間(單位:秒)
18)、上報設置
設定設備是否定時主動上報數據(單位:秒),0表示不上報
19)、漏電切除
剩余電流低于設定值時顯示0
20)、電能擦除
電能數據清零
21)、額定電流值
本保護器的額定工作電流(用戶不可設置)
22)、設備號
本保護器的設備編號(用戶不可設置)
23)、短路記錄
記錄短路報警次數(用戶不可設置)
(二)、工作狀態
電氣防火限流式保護器顯示操作面板1、液晶顯示屏
實時顯示被測回路的短路、故障電弧狀態、電壓、電流、頻率、漏電、溫度值,及當前限流保護狀態,當發生短路或被測參數達到設定的報警值時,會自動跳轉到狀態顯示窗口,相應的報警燈會點亮并伴有聲音報警。
2、按鍵:用于實現特定功能和參數設置,應由專業人員操作。
(1)自檢按鍵:檢測保護器顯示、聲光等部件是否正常工作,按下后所有指示燈都會點亮、并伴有揚聲器短暫的聲音,同時液晶顯示屏會全屏點亮,自檢完成后自動恢復到正常使用狀態;
(2)消音(返回)按鍵:按下此鍵,可消除正在報警中的聲音,在下一次發生隱患報警時,還會自動觸發聲音報警;返回按鍵在進行參數設置時可以退出當前菜單返回到上一級。
(3)翻頁、切換、確定按鍵:翻屏、切換或進行參數設定和修改等
3、指示燈:
(1)運行指示燈:保護器處于正常監測運行時應為綠色閃爍狀態;處于保護狀態時常亮,表示保護器輸出保護。
(2)消音指示燈:當發生故障、報警事件時,若按下消音按鍵,則表現為綠色常亮狀態,提醒工作人員當前處于手動消音狀態。
(3)故障指示燈:當發生故障事件時,表現為黃色常亮狀態,同時發出故障音,表示保護器傳感器有故障,提醒工作人員及時解決處理。
(4)報警指示燈:當發生報警事件時,表現為紅色常亮狀態,同時發出報警音,這表示用電線路中出現報警情況,提醒工作人員及時解決處理。
(5)過載指示燈:當發生過載事件時,表現為紅色常亮狀態,同時發出過載報警音,這表示用電線路中出現超負載情況,提醒工作人員及時解決處理。
(6)短路指示燈:當發生短路事件時,表現為紅色常亮狀態,同時發出短路報警音,這表示用電線路中出現短路情況,提醒工作人員及時解決處理。
(7)WORK:顯示GPRS通訊模塊是否正常運行,正常運行時應為綠色閃爍狀態。
(8)LINK:顯示GPRS通訊模塊網絡連接是否正常,正常時應為綠色狀態。
4、蜂鳴器:
(1)當有故障事件時,蜂鳴器間隔響聲500ms,同時故障燈指示亮起
(2)當有報警事件時,蜂鳴器間隔響聲300ms(相比故障鳴音更加急促),同時報警指示燈亮起
(3)當有短路事件時,蜂鳴器間隔響聲200ms(相比報警鳴音更加急促),同時短路指示燈亮起:
五、安裝說明:
安裝尺寸圖:
接線端子說明:
進線A、B、C:分別接三相ABC輸入
出線A、B、C:分別接三相ABC輸出
N:接零線
接地線需要接入PE地線
A、B:RS485總線(如啟用4G功能,則此路失效)
DQ、G、+5V:外接溫度傳感器輸入接口
I、I*:接剩余電流互感器輸入
DI、DI*:遙信輸入
K1、K2:控制輸出
本保護器已經內置溫度傳感器,另外可以選擇配接一路外置溫度傳感器:
紅線接+5V、黑線G
黃線接DQ
特別注意:
保護器的分斷保護采用的是非傳統機械式開關觸點,當電氣防火限流式保護器處于限流保護狀態時,其輸出端仍有微弱輸出,嚴禁帶電操作其接線端子。如需進行下端檢修,請務必斷開其上端電源。
當由于環境溫度過高,或者使用場所散熱不良時,電氣防火限流式保護器可能由于溫度過高而進行限流保護,此時需要等溫度降到合適范圍,保護器才能工作。因此,請確保使用場合散熱通風良好。
其他事項:
1、電氣防火限流式保護器應安裝在被保護范圍的電源入口處。
2、本機使用螺釘安裝于配電箱或配電柜內,墻壁安裝時,需配用適當的箱體,并應使本機面板露出箱外,或在箱體正面開設透聲孔縫,以免警報聲響被封閉。
3、請確保安裝箱體、場所通風良好,便于設備散熱。
4、電氣限流式保護器如采用4G通訊,請確保安裝之處有足夠強度的網絡信號,否則請將天線引出到有網絡信號的地方。
5、安裝完畢后,接通電源,由專業人員設置好相應的參數,保護器即進入正常監測工作狀態。
6、電氣防火限流式保護器必須停電安裝,嚴禁帶電操作接線端子。
7、電氣防火限流式保護器一般無需特殊保養和維護,僅需注意防水、防塵和通風散熱即可。保護器內部安裝有散熱風扇,保護器自動檢測機體內部的工作溫度,實現智能化散熱控制。保護器需定期進行一次通風口積灰檢查,積灰嚴重的需要進行清潔,同時應注意檢查風扇能否正常運轉。
六、一般故障排除
電氣防火限流式保護器的故障排除,請參照下表:
| 故障現象 | 故障部位 | 可能原因 | 解決辦法 |
| 液晶屏無顯示,運行指示燈亮 | 保護器 | 復位不正常 | 斷電后重新開機 |
| 液晶屏無顯示,運行指示燈不亮 | 保護器 | 電源線斷線 | 檢查電源線并重新接好 |
| 液晶屏電流顯示始終為“ 0” | 保護器 | 斷線 | 檢查接線 |
| 液晶屏溫度顯示始終為“ 0”或“無” | 溫度傳感器 | 斷線或損壞 | 檢查接線或更換 |
如出現其它現場不可解決的問題,請與我公司聯系。
七、注意事項
(1)每日操作“自檢”按鈕,并確認正常,以保證保護器處于正常工作狀態。
(2)報警發生時,應先做“消音”處理,觀察指示燈和液晶顯示屏的內容,判斷報警或故障類型,再對供電電路進行隱患排除,隱患排除以后進行復位操作,使保護器恢復正常工作狀態。
(3)每次故障處理后,應對發生故障的時間、類型及處理方式等內容進行記錄,以便日后查詢。
(4)未經本公司同意,任何人員不得拆開保護器或進行維修。
(5)按國家標準GB 13955-2005規定,本裝置的工作年限為六年,屆時應予以更換。
(6)電氣防火限流式保護器應在其主要技術特性下工作,保護器屬于精密儀器儀表類,應避免沖擊、碰撞,嚴禁雨水淋濕。
咨詢熱線
400-0571-185